- +7(8362)75-59-00, +7(917)-709-0998
- Теремъ12, г.Йошкар-ола, ул. Строителей 88.
- fibrolit12@inbox.ru
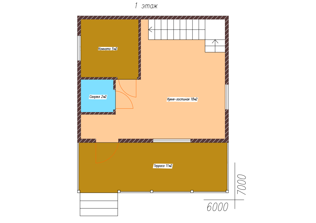
Дачный дом с террасой 6х7м
Размеры дома: 6х7м
Размер террасы: 2х6м
Площадь 1этажа : 25 м2
Площадь мансарды : 26 м2
Общая площадь: 51м2
Площадь террасы: 12м2
Стоимость в базовом комплекте: 1 500 000 руб.
Фундамент: винтовые сваи;
Стены: каркасные из бруса 100мм, антисептик, пароизоляция, утеплитель 100мм, ветрозащитная мембрана, обшивка снаружи имитацией бруса, внутри евровагонкой;
Пол 1 этажа: лаги из бруса, антисептик, черновой пол, влагоизоляция, утеплитель 100мм, пароизоляция, пол из доски пола;
Потолок 1 этажа: лаги из бруса, антисептик, звукоизоляция, пароизоляция, подшив евровагонкой;
Потолок мансарды: лаги из бруса, антисептик, пароизоляция, утеплитель 100мм, евровагонка;
Перегородки по проекту;
Кровля: металлочерпица;
Снегозадержатели на крыше;
Водосток;
Подшив свесов кровли: евровагонка;
Окна: пластиковые – 5 шт; форточка;
Дверь: металлическая утепленная ;
Межкомнатные двери – 3шт;
Ограждение террасы: строганный брус.
В стоимость входит доставка и сборка дома.
По желанию можно изменить размеры дома, материалы наружной отделки и кровли с последующим перерасчетом стоимости.
Срок монтажа 50 рабочих дней
